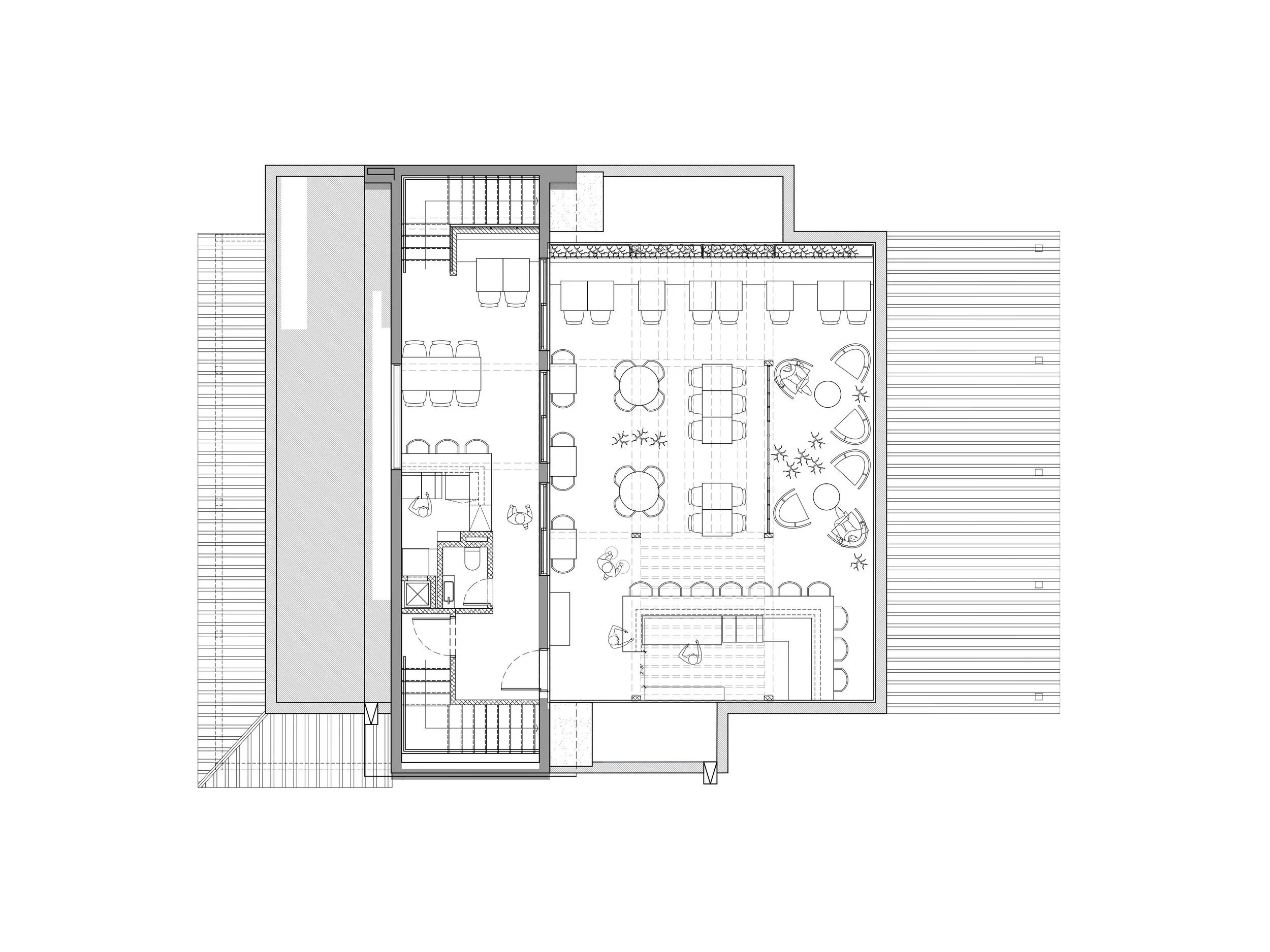
LA CACHE DU LAC_SAINT-GABRIEL-DE-BRANDON















































Resto-Bar
IMAGE DE MARQUE
AMÉNAGEMENT COMPLET SUR LES 2 ÉTAGES
2 000 P.C.
2 TERRASSES
TRAVAUX 2021
DESIGN INTÉRIEUR
V
IMAGE DE MARQUE
AMÉNAGEMENT COMPLET SUR LES 2 ÉTAGES
2 000 P.C.
2 TERRASSES
TRAVAUX 2021
DESIGN INTÉRIEUR